Til leie

VØYENENGA: Kontor og butikklokaler til leie. Ledig areal fra 93-412 kvm BTA. GUNSTIGE LEIEBETINGELSER.

Nøkkelinfo:

Adresse:
Vøyenengtunet 5, 1339, VØYENENGA

Areal:
0 m2

Tomt:
m2

Fasiliteter:

2 1

Type lokale:

Kontor

Vi har ledig følgende lokaler:

Vøyenengtunet 2:
1.etg.
139 kvm BTA. butikk. Består av salgsareal, 2 kontorer, pauserom med kjøkken og toalett. Direkte inngang fra gateplan.

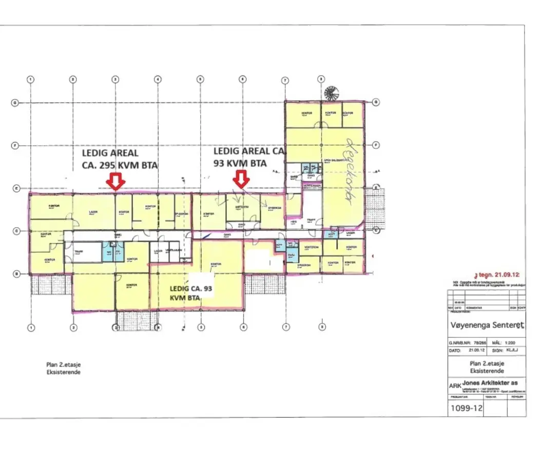
Vøyenengtunet 5:
2.etg.:
93 kvm BTA. To romslige kontorer og møterom med kjøkken.
130 kvm BTA. Åpent landskap, møterom og kjøkken.
295 kvm BTA. Kontorer av varierende størrelse, møterom og spiserom/kjøkken og toaletter. Lokalene holder en god standard.

3.etg.:
412 kvm BTA består av kontorer i varierende størrelser, møterom, landskapsareal, toaletter, kjøkken.

Kort om eiendommen:

Eiendommen er leid ut til kontorbrukere, helserelaterte virksomheter og butikk for salg av klær og div. utstyr.

Lokalene til leie ligger i Vøyenengtunet 2 og 5.

Fasiliteter i bygget:
God parkeringsdekning på eiendommen med p-plasser ute og i garasje,
Fibertilknytning.
Heis.

Beliggenhet:

Eiendommen ligger lett tilgjengelig fra Ringeriksveien på Vøyenenga. Det er kort avstand til E16 mot Hønefoss eller Sandvika. Ca. 10 min med bil til Sandvika.

Bygget ligger ved Vøyenenga senter med alt av fasiliteter og servicetilbud som finnes her.
Bussholdeplass med rute 240 ligger 2 min. gange fra lokalene.

Adkomst:

Se vedlagt kartskisse.

Innhold:

Vi har ledig følgende lokaler:

Vøyenengtunet 2:
1.etg.
139 kvm BTA. butikk. Består av salgsareal, 2 kontorer, pauserom med kjøkken og toalett. Direkte inngang fra gateplan.

Vøyenengtunet 5:
2.etg.:
93 kvm BTA. To romslige kontorer og møterom med kjøkken.
130 kvm BTA. Åpent landskap, møterom og kjøkken.
295 kvm BTA. Kontorer av varierende størrelse, møterom og spiserom/kjøkken og toaletter. Lokalene holder en god standard.

3.etg.:
412 kvm BTA består av kontorer i varierende størrelser, møterom, landskapsareal, toaletter, kjøkken.

Parkering:

Mulig å leie p-plass i garasje eller ute.

Kontakt oss for visning og tilbud:

Silje Bolstad

Silje Bolstad

92 05 42 22
sb@arealpartner.no

Nærområdet:

Annonsene kan være mangelfulle i forhold til lovpålagt opplysningsplikt. Før bindende avtale inngås oppfordres interessenter til å innhente komplett informasjon fra meglerforetaket, selger eller utleier.