Til leie

Uranienborg - Forretningslokale med meget god profilering og attraktiv beliggenhet bak slottet.

Nøkkelinfo:

Adresse:
Uranienborgveien 4, 0258, OSLO

Areal:
0 m2

Tomt:
m2

Fasiliteter:

Type lokale:

Butikk

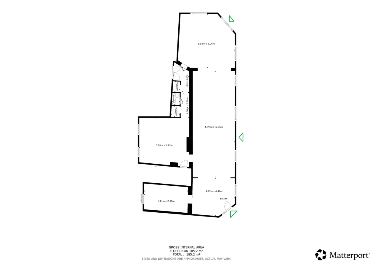
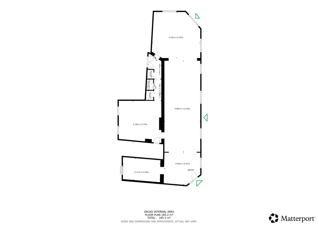
Forretningslokale i 1. etg. BTA 185 kvm., samt lager ca. BTA 60 kvm. i kjeller.
Lokalet inneholder store salgsarealer mot gaten i hele byggets bredde, samt kontor, lager og toaletter mot bakgården. Lokalet har god takhøyde og store vinduer mot gaten. Lokalet er opprinnelig 3. stk. seksjoner så det er mulighet for flere inngangsdører.

Kort om eiendommen:

Vi har for utleie et meget flott forretningslokale med sentral og god beliggenhet. Lokalet har i mange år vært leid ut til forretningen Nomaden, men blir ledig for ny leietaker fra nytt år. Lokalet er BTA 185 kvm. på gateplan med tillegg av ca. 60 kvm. lager i kjelleren. Ta kontakt for avtale om visning.

Bebyggelse:

Uranienborgveien 4 er en meget flott bygård oppført ca. 1895 med næringslokaler i 1. etg. og boliger i de øvrige etasjene.

Beliggenhet:

Uranienborgveien 4 har en meget attraktiv beliggenhet på Frogner, rett bak Slottet. Lokalet ligger på hjørnet Uranienborgveien og Inkognitogata og har kun et par minutters gange til Oslo´s mest attraktive handlegater.

Området er en del av et etablert og populært bymiljø med en blanding av kontorer, butikker, serveringssteder og boliger. Nærområdet preges av representative bygg, solid kundegrunnlag og et yrende byliv.

Offentlig kommunikasjon er godt ivaretatt med både trikk og buss i umiddelbar nærhet, samt T-bane, tog og Flytog fra Nationaltheatret stasjon.

I forbindelse med boligprosjektet Lille Parkvei lages det nå en passasje fra Uranienborgveien til Hegdehaugsveien.

Adkomst:

Lokalet ligger på gateplan og har mulighet for flere inngangsdører direkte inn i lokalet.

Innhold:

Forretningslokale i 1. etg. BTA 185 kvm., samt lager ca. BTA 60 kvm. i kjeller.
Lokalet inneholder store salgsarealer mot gaten i hele byggets bredde, samt kontor, lager og toaletter mot bakgården. Lokalet har god takhøyde og store vinduer mot gaten. Lokalet er opprinnelig 3. stk. seksjoner så det er mulighet for flere inngangsdører.

Kontakt oss for visning og tilbud:

Reidar Kjølberg

Reidar Kjølberg

95 28 26 60
rk@arealpartner.no

Nærområdet:

Annonsene kan være mangelfulle i forhold til lovpålagt opplysningsplikt. Før bindende avtale inngås oppfordres interessenter til å innhente komplett informasjon fra meglerforetaket, selger eller utleier.