Til leie

Sjelden mulighet på Adamstuen! Innredning etter leietakers ønske/behov. Kontor/behandling/helse. BTA ca. 195 kvm.

Nøkkelinfo:

Adresse:
Sognsveien 4, 0451, OSLO

Areal:
0 m2

Tomt:
m2

Fasiliteter:

2

Type lokale:

Kontor

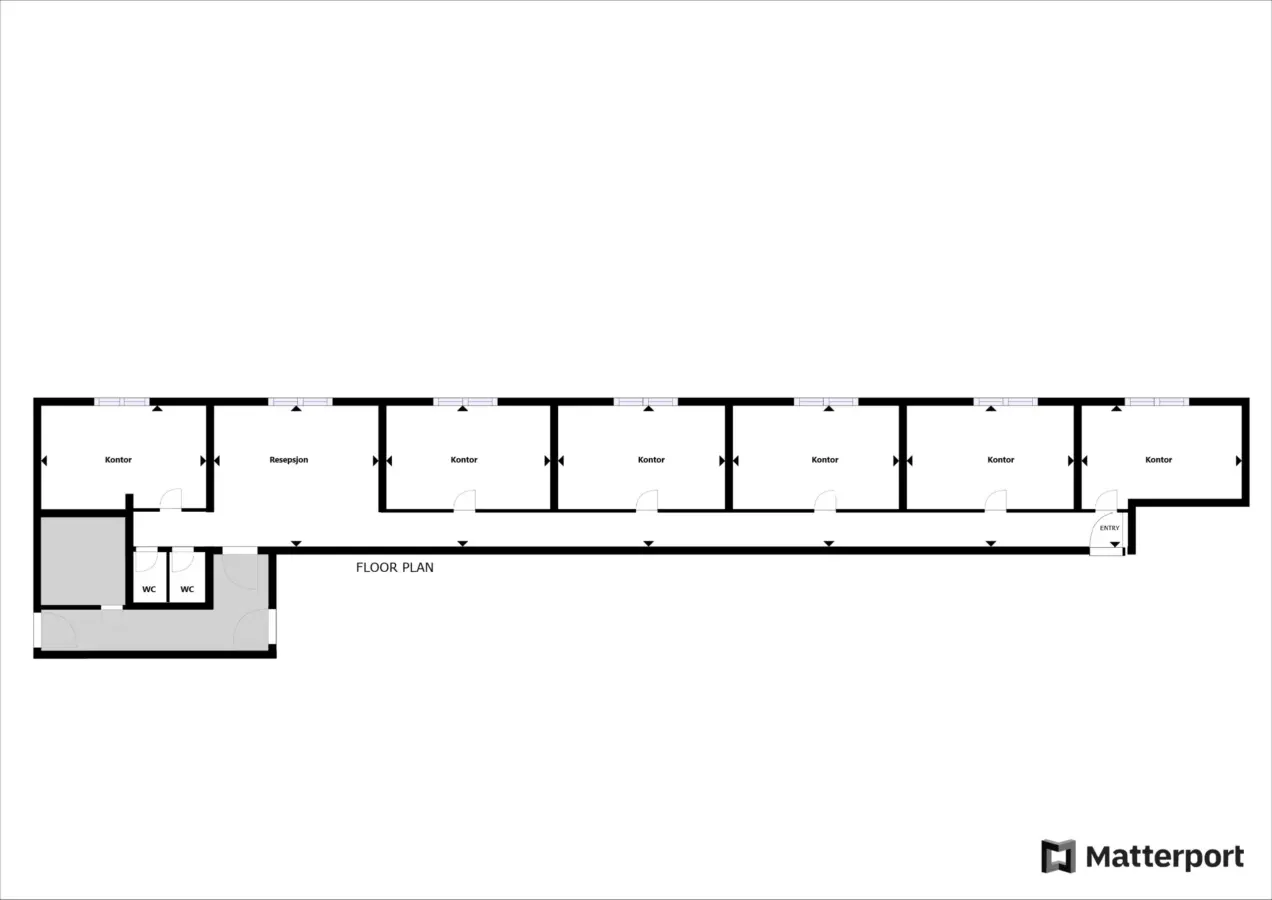
Lokalet vil bli tilpasset og innredet etter leietakers behov/ønsker.

Cellekontorer, møterom, resepsjon, behandlingsrom, tekniskrom, garderober, mm.

Kort om eiendommen:

Stort lokale som er meget godt egnet for behandlingsrom, helseforetak, cellekontorer, mm.

Takhøyde: ca. 250 cm.
Vinduer: 7 stk, 2-delte vinduer med ca. B: 180 cm H: 95 cm.

Alternativ innh 1:
Resepsjon/venterom, 4/5 behandlingsrom, lab/teknisk og kjøkken/pauserom.
Alle rom ca. 18 kvm.
2 toalettrom (ev. 1 stk HC-toalett).

Alternativ innh 2:
Inntil 7 cellekontorer.
Alle rom ca. 18 kvm.
2 toalettrom (ev. 1 stk HC-toalett).

Parkering:
1 stk. p-plass i byggets garasjekjeller.

Beliggenhet:

Adamstuen er en attraktiv og sentral beliggenhet med enkel tilgang til både sentrum og større knutepunkter.

Med kort vei til St. Hanshaugen, et godt utvalg trivelige kafeer/restauranter, samt øvrige servicetilbud, har området alt du trenger for en effektiv og trivelig arbeidsdag.
Området kombinerer klassisk bebyggelse med urban atmosfære, og grønne omgivelser til et inspirerende arbeidsmiljø.

God kollektivdekning og enkel adkomst gjør det til et praktisk valg for både ansatte og kunder.

Adkomst:

Se vedlagte kopi av kart.

Innhold:

Lokalet vil bli tilpasset og innredet etter leietakers behov/ønsker.

Cellekontorer, møterom, resepsjon, behandlingsrom, tekniskrom, garderober, mm.

Standard:

Rålokale, tilpasses leietakers behov.

Parkering:

1 stk. p-plass i byggets garasjekjeller.

Kontakt oss for visning og tilbud:

Lasse Bjørnson

Lasse Bjørnson

90 60 44 81
lb@arealpartner.no

Nærområdet:

Annonsene kan være mangelfulle i forhold til lovpålagt opplysningsplikt. Før bindende avtale inngås oppfordres interessenter til å innhente komplett informasjon fra meglerforetaket, selger eller utleier.