Til leie

Ryen: Representative lokaler til leie på 172,5 kvm BTA. Passer for helse eller kontorbrukere.

Nøkkelinfo:

Adresse:
Sandstuveien 60A, 1184, OSLO

Areal:
0 m2

Tomt:
m2

Fasiliteter:

2 1

Type lokale:

Kontor

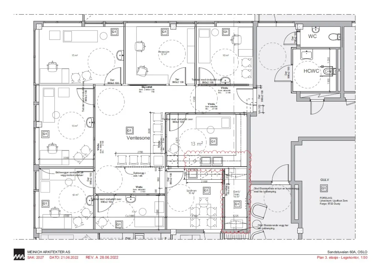
3.etg. på ca. 172,5 kvm BTA.:
Arealet består av 6 kontorer i varierende størrelser, spiserom og sosial sone. Lokalene har tidligere vært utleied som lege kontor, så kontorene er lydtette og det er vasker på alle kontorene, i tillegg er det bygget rom for lab og venterareal for pasieneter.
Det er felles HCWC og personaltoalett for etasjen.

Lokalene kan bygges om iht. ny leietakers behov og ønsker.

Lokalene er lyse med store vindusflater som gir godt arbeidslys. Lokalene holder en god standard.

Kort om eiendommen:

Eiendommen er leid ut til profesjonelle og solide selskaper innenfor ulike bransjer.

Lokalene til leie ligger i byggets andre etasje.

Fasiliteter i bygget:
* God parkeringsdekning på eiendommen.
* Sykkelparkering .
* Godt ventilasjonsanlegg.
* Fibertilknytning.
* Heis.
* Garasje.

Beliggenhet:

Sandstuveien 60A er en sentralt beliggende eiendom på Ryen med god eksponering mot Ring 3.
Bygget er oppført i 1986 og har et bredt spekter av ulike leietakere. I første etasje ligger Rema 1000.
Eiendommen ligger innen ca. 2 min. gange til offentlig kommunikasjon med buss og t-bane. Brattlikollen er nærmeste T-banestasjon og bussholdeplass.

Adkomst:

Eiendommen har direkte adkomst fra Sandstuveien. Dersom du kjører Ring 3 og tar av der det er skiltet til Ekeberg, så er eiendommen den første på høyre side.

Innhold:

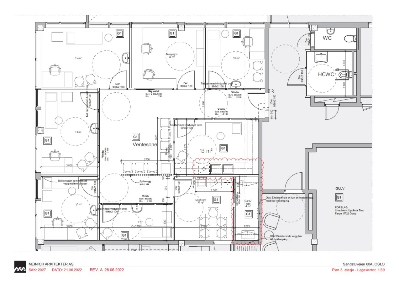
3.etg. på ca. 172,5 kvm BTA.:
Arealet består av 6 kontorer i varierende størrelser, spiserom og sosial sone. Lokalene har tidligere vært utleied som lege kontor, så kontorene er lydtette og det er vasker på alle kontorene, i tillegg er det bygget rom for lab og venterareal for pasieneter.
Det er felles HCWC og personaltoalett for etasjen.

Lokalene kan bygges om iht. ny leietakers behov og ønsker.

Lokalene er lyse med store vindusflater som gir godt arbeidslys. Lokalene holder en god standard.

Parkering:

Mulig å leie p-plass i garasje eller ute.

Kontakt oss for visning og tilbud:

Silje Bolstad

Silje Bolstad

92 05 42 22
sb@arealpartner.no

Nærområdet:

Annonsene kan være mangelfulle i forhold til lovpålagt opplysningsplikt. Før bindende avtale inngås oppfordres interessenter til å innhente komplett informasjon fra meglerforetaket, selger eller utleier.