Til leie

Økern: Representative kontorlokaler på 70 & 331 kvm BTA.

Nøkkelinfo:

Adresse:
Østre Aker vei 22, 0581, OSLO

Areal:
0 m2

Tomt:
m2

Fasiliteter:

Type lokale:

Kontor

Meget tiltalende og moderne kontorlokaler på ca. 70 og 331 kvm BTA. Lokalene holder en god standard med tepper på gulvene, malte glatte flater og utstrakt bruk av glass. Lokalene har store vindusflater, noe som gir godt arbeidslys.

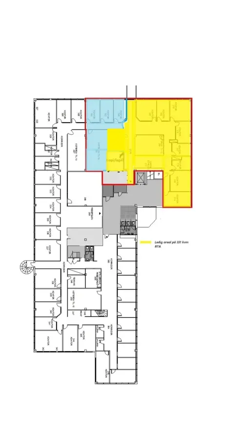
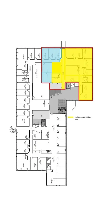
Kontorlokale på ca. 331 kvm BTA. i 3.etasje:
Består av 8 kontorer i varierende størrelser. Flere av kontorene passer godt til 2-4 personer. I tillegg er det 1 møterrom, sosialsone, kjøkken og arkiv/bod på ca. 20 kvm.

Kontorlokale på ca. 70 kvm BTA. i 2.etasje:
Lokalet består av tre kontorer og arkiv/datarom.

Mulig å leie lagerbur i byggets 4.etg.

Diverse:
* Tilgang til felles toaletter i trappoppgangen.
* Garderober med dusj i 1 .etasjen.
* Felles kantine i 4.etasje.
* Heis i bygget.

Kort om eiendommen:

Eiendommen ble bygget i 1994 og er holdt i meget god stand.

Innvendig er bygget i god stand.

Beliggenhet:

Østre Aker vei 22 ligger sentralt til på Økern med god eksponering mot Østre Aker vei.

Bygget ligger midt mellom Oslo`s bydeler i Øst, vest, nord og sør. Etter veiutbygging som var ferdigstilt for et par år siden er trafikksituasjonen blitt meget effektiv.

Enten man kommer fra sentrum (Økerveien), Smedstad (Ring 3), Furuset, Groruddalen og Gardemoen (Østre Aker vei) eller fra Kolboten (Ring 3) vil alle veier føre deg til Økern og Østre Aker vei 22.

Adkomst:

Se vedlagt kart.
Enkel tilgang med bil og kort vei til offentlig kommunikasjon. Det er ca. 3 min gange til Økern T-bane. Her går t-banens linje 5 (Østerås-Vestli) og det tar ca. 8 min. til sentrum.

Her stopper også følgende busser: 23, 24, 57, 60, 67, 105, 107, 313, 345, 435, F3 (Flybussekspress, ca. 44 min. til Gardermoen), T2 Timeekspressen, TE2.

Innhold:

Meget tiltalende og moderne kontorlokaler på ca. 70 og 331 kvm BTA. Lokalene holder en god standard med tepper på gulvene, malte glatte flater og utstrakt bruk av glass. Lokalene har store vindusflater, noe som gir godt arbeidslys.

Kontorlokale på ca. 331 kvm BTA. i 3.etasje:
Består av 8 kontorer i varierende størrelser. Flere av kontorene passer godt til 2-4 personer. I tillegg er det 1 møterrom, sosialsone, kjøkken og arkiv/bod på ca. 20 kvm.

Kontorlokale på ca. 70 kvm BTA. i 2.etasje:
Lokalet består av tre kontorer og arkiv/datarom.

Mulig å leie lagerbur i byggets 4.etg.

Diverse:
* Tilgang til felles toaletter i trappoppgangen.
* Garderober med dusj i 1 .etasjen.
* Felles kantine i 4.etasje.
* Heis i bygget.

Kontakt oss for visning og tilbud:

Silje Bolstad

Silje Bolstad

92 05 42 22
sb@arealpartner.no

Nærområdet:

Annonsene kan være mangelfulle i forhold til lovpålagt opplysningsplikt. Før bindende avtale inngås oppfordres interessenter til å innhente komplett informasjon fra meglerforetaket, selger eller utleier.