Til leie

Lommedalen - Lager, kombinasjonslokaler, vaske/verkstedhall, kontorlokaler, utelager/oppstillingsplasser m.m.

Nøkkelinfo:

Adresse:
Lommedalsveien 281, 1350, LOMMEDALEN

Areal:
0 m2

Tomt:
m2

Fasiliteter:

Type lokale:

Lager

Vi har følgende lokaler som blir ledige. Lokalene kan leies separat.

Lommedalsveien 281:
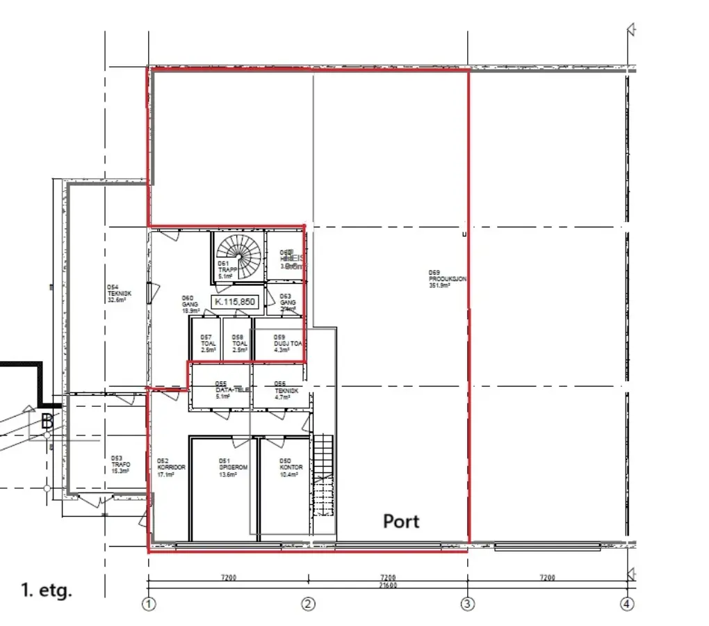
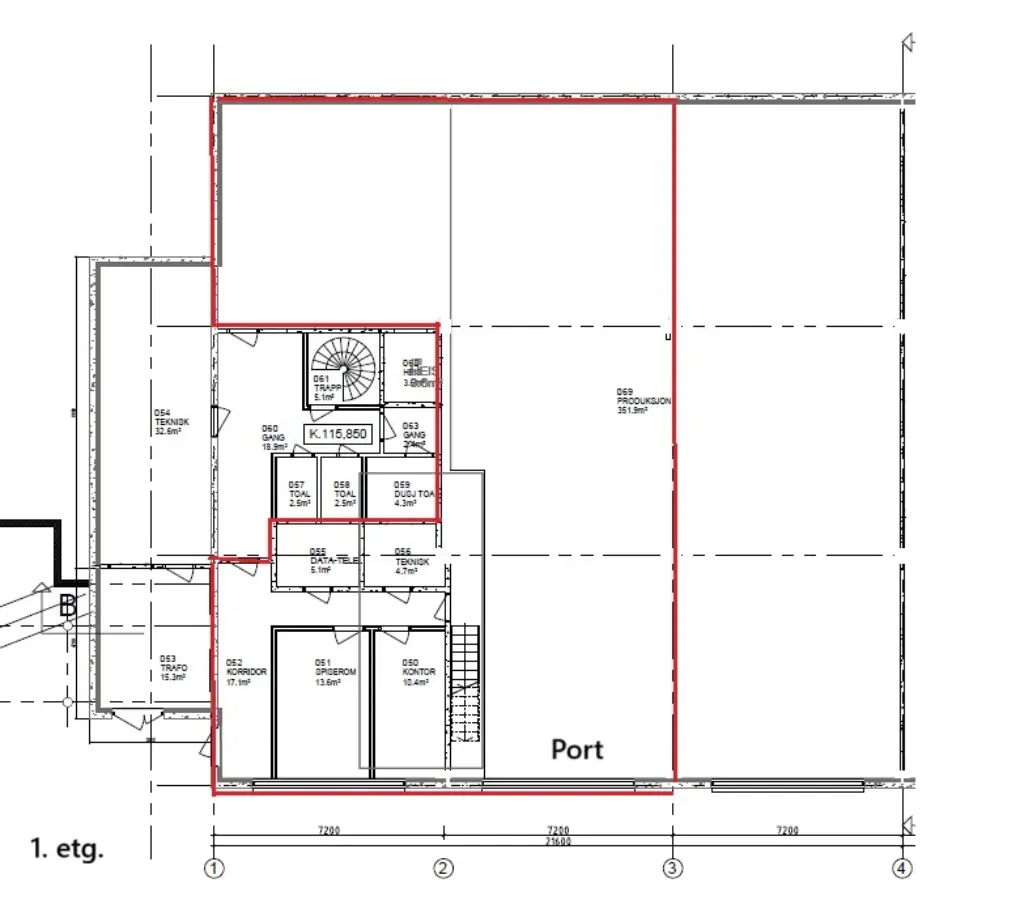
Kontor og verkstedhall (takhøyde på 4,9 meter) med garderobe/dusj, kjøreport og oljeutskiller. Samlet BTA ca. 350 kvm.
1. stk. container/lager (isolert 40 fot)
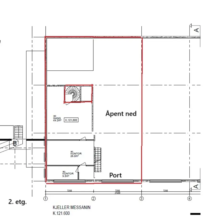
Kontorlokaler 2. etg. BTA ca. 75 kvm.
Kontorlokaler 2. etg. BTA 53 kvm.

Lommedalsveien 277:
Butikk/kontorlokale BTA ca. 200 kvm.
Kombinasjonslokale med kontor og et mindre lager (mulighet for port) BTA ca. 80 kvm.

I tillegg er det mulig å leie stor plass for utelagring/parkering med lagertelt. Opplegg for ladere til bil/buss.

Kort om eiendommen:

I Lommedalsveien 277 og 281 har vi ledige lokaler i varierende størrelser og varianter. Ta gjerne kontakt slik at vi kan avklare om vi har lokaler som passer ditt behov.

Beliggenhet:

Lokalene har en sentral plassering i Lommedalen med kort gangavstand til bussholdeplass.
Forretninger og en rekke servicetilbud i nærområdet.

Adkomst:

Eiendommen ligger i krysset Lommedalsveien og Skollerudveien. Enkel adkomst for store biler. Stor asfaltert plass og gode parkeringsmuligheter.

Innhold:

Vi har følgende lokaler som blir ledige. Lokalene kan leies separat.

Lommedalsveien 281:
Kontor og verkstedhall (takhøyde på 4,9 meter) med garderobe/dusj, kjøreport og oljeutskiller. Samlet BTA ca. 350 kvm.
1. stk. container/lager (isolert 40 fot)
Kontorlokaler 2. etg. BTA ca. 75 kvm.
Kontorlokaler 2. etg. BTA 53 kvm.

Lommedalsveien 277:
Butikk/kontorlokale BTA ca. 200 kvm.
Kombinasjonslokale med kontor og et mindre lager (mulighet for port) BTA ca. 80 kvm.

I tillegg er det mulig å leie stor plass for utelagring/parkering med lagertelt. Opplegg for ladere til bil/buss.

Parkering:

Parkeringsplasser/uteplass kan leies etter nærmere avtale.

Kontakt oss for visning og tilbud:

Reidar Kjølberg

Reidar Kjølberg

95 28 26 60
rk@arealpartner.no

Nærområdet:

Annonsene kan være mangelfulle i forhold til lovpålagt opplysningsplikt. Før bindende avtale inngås oppfordres interessenter til å innhente komplett informasjon fra meglerforetaket, selger eller utleier.