Til leie

Grini Næringspark - Kontorlokaler til leie BTA 30 - 300 kvm. Fleksible løsninger. Gode parkeringsmuligheter.

Nøkkelinfo:

Adresse:
Grini Næringspark 15, 1361, ØSTERÅS

Areal:
0 m2

Tomt:
m2

Fasiliteter:

Type lokale:

Kontor

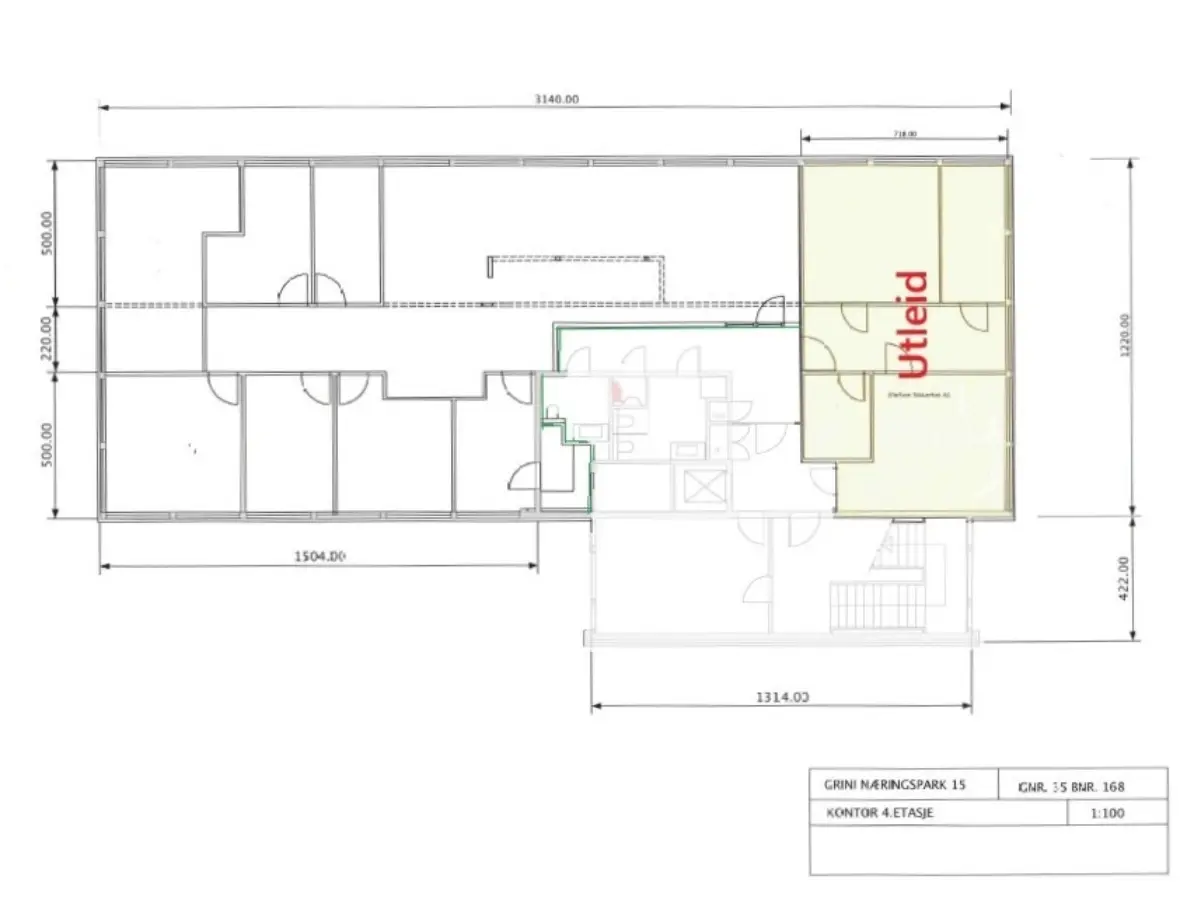
Vi har følgende lokaler i bygget til leie. Lokalene leies ut samlet, eller oppdelt. Innvendige vegger kan flyttes/fjernes slik at planløsningen passer ny leietaker.

4. etg. BTA 20-300 kvm.:
Lokalet inneholder kontorer og kontorlandskap i forskjellige størrelser, kjøkken og spise/møterom. Lokalet kan leies samlet, eller oppdelt i mindre leieforhold med felles kjøkken og møterom.

Toaletter (3. stk. per etg.) i fellesarealet.

Bebyggelse:

Grini Næringspark 15 er en kombinasjonseiendom med kontorer, lagerlokaler, person/vareheis og garderobe med dusj. God parkeringsdekning.

Beliggenhet:

Grini Næringspark ligger på Østerås i Bærum, rett ved Griniveien. Det er kun 3-4 minutter med bil til Oslo grensen.

Gangavstand til Østerås T-banestasjon (ca. 1 km). Busstopp i Nordveien. Ca. 15 minutter med bil til Oslo sentrum og 10 minutter til Lysaker.

Adkomst:

Eiendommen har meget enkel adkomst med bil fra Griniveien. Lokalene har heis og trappeadkomst.

Innhold:

Vi har følgende lokaler i bygget til leie. Lokalene leies ut samlet, eller oppdelt. Innvendige vegger kan flyttes/fjernes slik at planløsningen passer ny leietaker.

4. etg. BTA 20-300 kvm.:
Lokalet inneholder kontorer og kontorlandskap i forskjellige størrelser, kjøkken og spise/møterom. Lokalet kan leies samlet, eller oppdelt i mindre leieforhold med felles kjøkken og møterom.

Toaletter (3. stk. per etg.) i fellesarealet.

Standard:

Lyse kontorlokaler i toppetasjen. Planløsning og tilpasning av lokalene etter avtale. Eiendommen har ventilasjon med kjøling.

Parkering:

God parkeringsdekning på eiendommen for leietakere og gjester.

Kontakt oss for visning og tilbud:

Reidar Kjølberg

Reidar Kjølberg

95 28 26 60
rk@arealpartner.no

Nærområdet:

Annonsene kan være mangelfulle i forhold til lovpålagt opplysningsplikt. Før bindende avtale inngås oppfordres interessenter til å innhente komplett informasjon fra meglerforetaket, selger eller utleier.