Til leie

Bryn: Gunstige leiebetingelser. Ta kontakt for info.

Nøkkelinfo:

Adresse:
Nils Hansens vei 7, 0667 OSLO

Type lokale:

Kombinasjon

Beliggenhet:

Nils Hansens vei 7 har en sentral beliggenhet på Bryn med enkel kommunikasjon til hovedfartsårene i alle retninger. Det tar kun 3 minutter med bil fra Helsfyr, ca. 10 minutter til sentrum og ca. 25 min. til Oslo Lufthavn Gardermoen.

Offentlig kommunikasjon:
Bussholdeplass i Tvetenveien med rute 66, 76 og 102. Fra Bryn togstasjon er det togforbindelse til Lillestrøm og Drammen. Det er ca. 5 minutters gange til togstasjonen og 10 min. gange til t-banen på Brynseng (linje 1, 2 og 4). De mange rutene gjør det enkelt og effektiv å bruke offentlig kommunikasjon.

Adkomst:

Se vedlagt kartskisse.

Innhold:

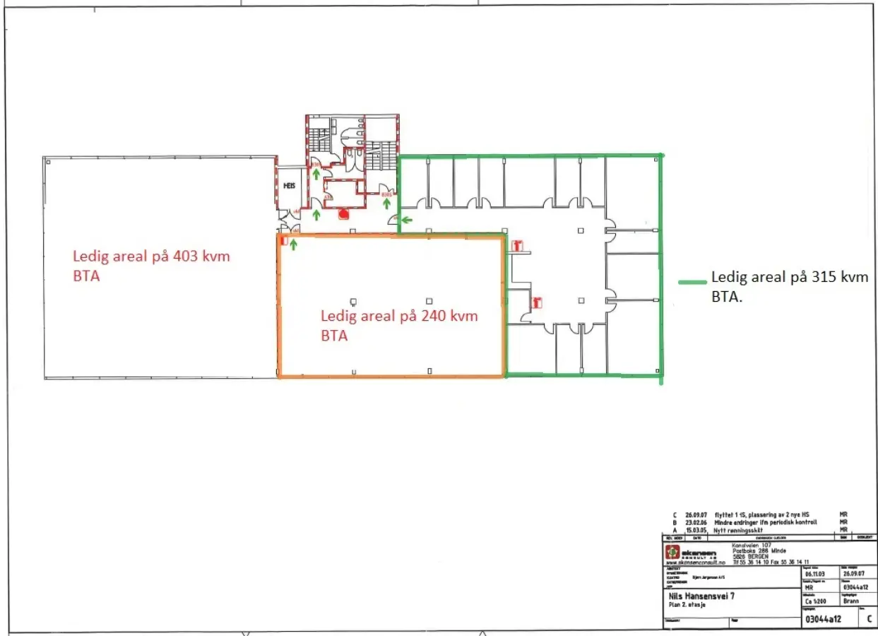
Hele 2. etasjen på 1.150 kvm BTA kan leies samlet eller oppdelt i følgende arealer:

2. Etasje ca. 288 kvm BTA:
Lokalet er i dag innredet til kontor, samt rom for smålagring. Lokalet består av åpent landskap med plass til 8-10 arbeidsplasser, tre kontorer, møterom, lite lager, kjøkken med spiseplass og sosial sone.

2.Etasje ca. 378 kvm BTA:
Lokalet er i dag innredet til kontor og består av 12 kontorer av varierende størrelse, i tillegg er det 2 store møterom, samt kjøkken og sosial sone.

2. Etasje ca. 484 kvm BTA:
Lokalet er i dag innredet til kontor og består av 3 landskapsarealer for 10-15 personer, 2 kontorer, 3 møterom, kjøkken og sosial sone. I tillegg er egne toaletter til lokalene.

Parkering:

God parkeringsdekning på eiendommen, mulig å leie ladeplass. Gratis gjesteplasser.

Servitutter og erklæringer:

På eiendommen er det tinglyst følgende heftelser og rettigheter som følger eiendommens matrikkel ved overskjøting til ny hjemmelshaver:

301/132/101:
10.12.1968 - Dokumentnr: 19168 - Erklæring/avtale
Vedtak av Oslo kommunes vann- og kloakkreglement
Kan ikke slettes uten samtykke fra kommunen


22.10.1976 - Dokumentnr: 23239 - Rettighet
Rettighetshaver: Ljungmann Hellen AS
Org.nr: 948 707 624
LEIE AV NÆRINGSLOKALE
LEIE-TID: 10 ÅR, LEIE-FORLENGELSE: 10 ÅR
INNSKUDD / ENGANGSBELØP: NOK 173,250
ÅRLIG AVGIFT NOK 76,230
BESTEMMELSER OM REGULERING AV LEIEN
BESTEMMELSER OM OVERDRAGELSE AV KONTRAKTEN
Rettsvernet foreldet 01.01.90. Ny prioritet fra 10.04.92.
Rettet i.h.t. tgl.l. ` 18. 31.07.1995 SIV
----------
Transport av rettighet
Fra: Ljungmann C A & Søn
Løpenr: 1175206
Til: Ljungmann Hellen AS
Org.nr: 948 707 624
----------
Nye vilkår i leie
Forlengelse av leietiden til 01.01.2000
Opsjon på ytterligere leie i 5 år.
Leie kr 600 pr kvm for 543 kvm
Resterende 150 kvm vederlagsfritt
Leieregulering


17.10.2000 - Dokumentnr: 60696 - Rettighet
Rettighetshaver: Enterprise Resource Pl Consult AS
Org.nr: 981 290 569
LEIEAVTALE
Leietid 4 år
Fra dato 01/02/2000 til 31.12.2004
Leie 300.000 pr. år som reg.
Kan ikke framleies uten samtykke av
hjemmelshaver/utleier
Opsjon på ytterligere 5 års leie


20.12.1966 - Dokumentnr: 18579 - Registrering av grunn
Denne matrikkelenhet opprettet fra:
Knr:0301 Gnr:132 Bnr:4

Kontakt oss for visning og tilbud:

Silje Bolstad

Silje Bolstad

92 05 42 22
sb@arealpartner.no

Nærområdet:

Annonsene kan være mangelfulle i forhold til lovpålagt opplysningsplikt. Før bindende avtale inngås oppfordres interessenter til å innhente komplett informasjon fra meglerforetaket, selger eller utleier.