Til leie

Bjørnerud: Kombinasjonslokaler på 660 kvm (280 kontor, 380 lager)og kontor fra 124 til 344 kvm med lager på ca. 100 kvm.

Nøkkelinfo:

Adresse:
Bjørnerudveien 12A, 1266, OSLO

Areal:
0 m2

Tomt:
m2

Fasiliteter:

Type lokale:

Kombinasjon

Ledige lokaler i Bjørnerudveien 12A:
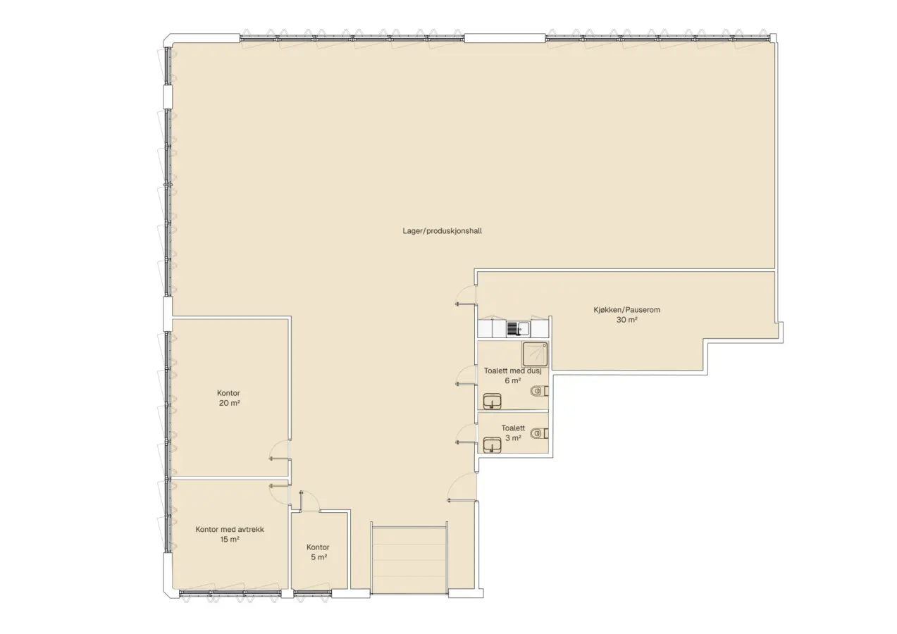
Kombinasjonslokaler på ca. 660 kvm BTA.

Kontordel på 280 kvm BTA:
Resepsjonsområde, 10 kontorer av ulik størrelse, 2 møterom og kjøkken med spiseplass. Kjøkken og møterom kan åpnes til et stort møterom (foldevegger i mellom). To toaletter hvorav en med dusj.

Lager på ca. 380 kvm BTA:
Kjøreport fra gateplan. Takhøyde på ca. 4 meter og port 3,37 meter.
Det er to kontorer, kjøkken & pauserom og verkstedsdel med avtrekk.

Ledige lokaler i Bjørnerudveien 12B:
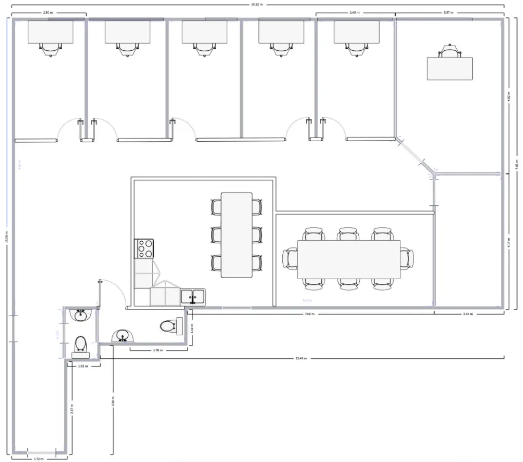
Kontorlokaler på 124, 220 eller 344 kvm BTA:
Per i dag er det to kontorareal på ca. 124 og 220 kvm som enkelt kan slås sammen ved fjerning av vegg.

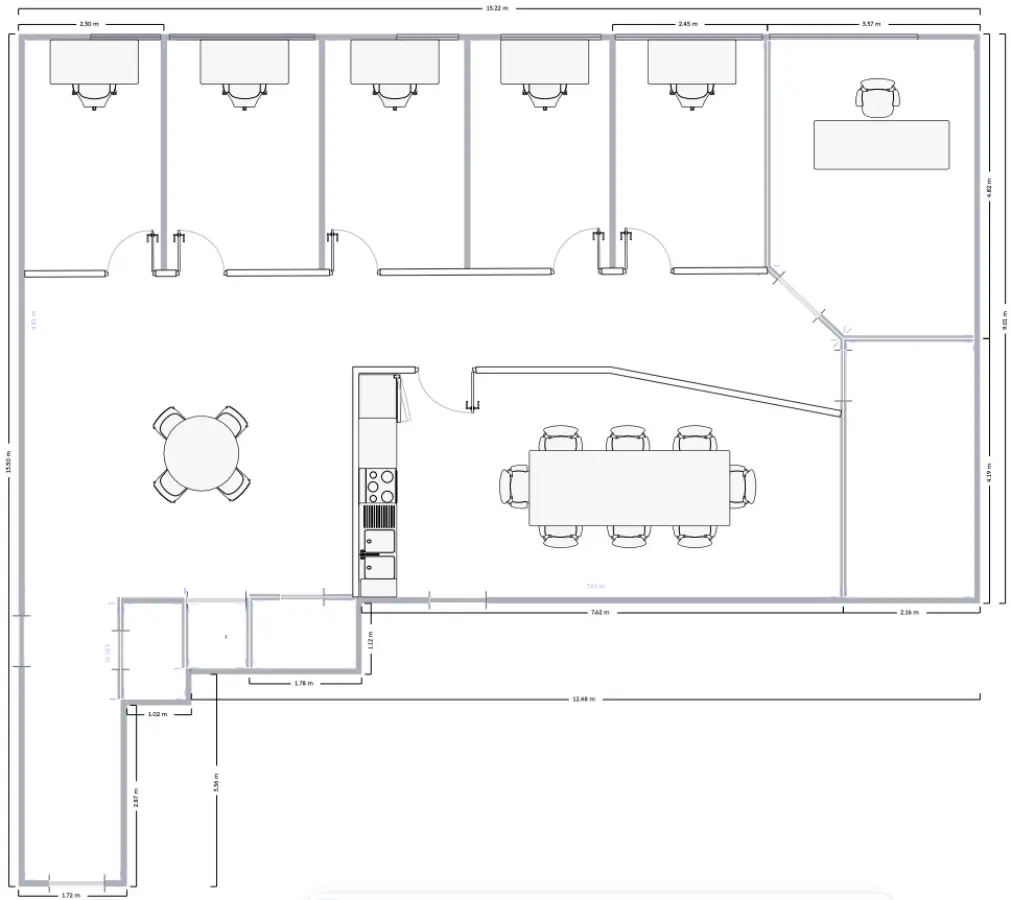
Det ene lokalet på 220 kvm BTA trenger oppussing og skal pusses opp for leietaker iht. leietakers behov og ønsker. Se vedlagt tegning som viser forslag til løsning.

Begge kontorarealene har to toaletter hver.

I byggets 2.etg. i er det ledig lager på ca. 100 kvm BTA. Lageret har tilgang via heis. Det er ikke port fra bakkeplan, så det passer best som plukklager og til småvarer.

Beliggenhet:

Bjørnerudveien 12 har en sentral beliggenhet i et veletablert industri- og næringsområde (Bjørnerud Industriområdet).

Enkel kommunikasjon til hovedfartsårene i alle retninger. Det tar kun 2 minutter med bil til E6 og ca. 5 minutter til E18.

Offentlig kommunikasjon med buss 77 fra Nebbejordet ca. 3 min gange. Det er også en holdeplass i Ljabruveien med buss 77, 515, 550. Hauketo togstasjon er heller ikke langt unna. De mange rutene gjør det enkelt og effektiv å bruke offentlig kommunikasjon.

Det er også enkelt å komme til og fra området med sykkel, via et godt nettverk av sykkelveier.

Adkomst:

Se vedlagt kart.

Innhold:

Ledige lokaler i Bjørnerudveien 12A:
Kombinasjonslokaler på ca. 660 kvm BTA.

Kontordel på 280 kvm BTA:
Resepsjonsområde, 10 kontorer av ulik størrelse, 2 møterom og kjøkken med spiseplass. Kjøkken og møterom kan åpnes til et stort møterom (foldevegger i mellom). To toaletter hvorav en med dusj.

Lager på ca. 380 kvm BTA:
Kjøreport fra gateplan. Takhøyde på ca. 4 meter og port 3,37 meter.
Det er to kontorer, kjøkken & pauserom og verkstedsdel med avtrekk.

Ledige lokaler i Bjørnerudveien 12B:
Kontorlokaler på 124, 220 eller 344 kvm BTA:
Per i dag er det to kontorareal på ca. 124 og 220 kvm som enkelt kan slås sammen ved fjerning av vegg.

Det ene lokalet på 220 kvm BTA trenger oppussing og skal pusses opp for leietaker iht. leietakers behov og ønsker. Se vedlagt tegning som viser forslag til løsning.

Begge kontorarealene har to toaletter hver.

I byggets 2.etg. i er det ledig lager på ca. 100 kvm BTA. Lageret har tilgang via heis. Det er ikke port fra bakkeplan, så det passer best som plukklager og til småvarer.

Parkering:

Mulig å leie parkering på tomten med eller uten lademulighet.

Kontakt oss for visning og tilbud:

Silje Bolstad

Silje Bolstad

92 05 42 22
sb@arealpartner.no

Nærområdet:

Annonsene kan være mangelfulle i forhold til lovpålagt opplysningsplikt. Før bindende avtale inngås oppfordres interessenter til å innhente komplett informasjon fra meglerforetaket, selger eller utleier.