Til leie

Alna/Furuset: Pent oppusset kombinasjonslokale på 465 kvm. Unik eksponering mot E6. Bærekraftig eiendom.

Nøkkelinfo:

Adresse:
Tevlingveien 15, 1081, OSLO

Areal:
0 m2

Tomt:
m2

Fasiliteter:

Type lokale:

Kombinasjon

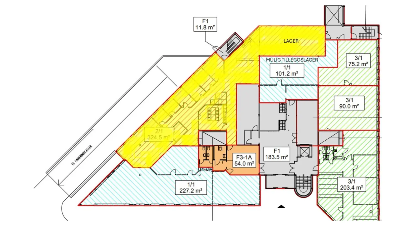
Vi har ledig kombinasjonslokale på ca. 465 kvm BTA.
Kontorareal på 375 kvm og lager på 91 kvm i byggets 1.etg.
Det er direkte adkomst mellom kontor og lager.

Kontorlokalene består av 6 kontorer av ulik størrelse med plass til 1-2 personer per kontor. 2 stk. landskapsareal for 4-6 personer. Kjøkken med spiseplass, 2 møterom og sosiale soner.

Lagerareal med felles innkjøring via port fra bakkeplan. Slusen deles med 2 andre leietakere. Egen port inn til eksklusivt lager fra slus. Takhøyde på ca. 3 meter.

Lokalet har en god og moderne standard.

Kort om eiendommen:

Eiendommen fremstår som moderne og meget attraktiv. Eiendommen er leid ut til profesjonelle og solide selskaper innenfor ulike bransjer.

Diverse:
* Pent oppusset inngangsparti og fellesareal.
* Godt ventilasjonsanlegg med kjøling fra 2022.
* Solcellepaneler på taket.
* Kantine.
* 2 stk. felles møterom for bygget. Bestilles ved behov.
* Personheis.
* Felles sykkelparkering innendørs.
* Dame- og herregarderobe i bygget.
* Mulighet for å leie p-plass.
* Gjesteplasser ved inngangen.
* Det foreligger energiattest for bygget, klassifisert med energimerke C.

Beliggenhet:

Meget sentralt plassert langs E6 på Alnabru/Furuset. Avkjøringen rett fra E6. Meget gode profileringsmuligheter.
Nærmeste nabo er Radisson Hotell & Conference, Bohus, Jysk, McDonald`s og Circle K.
Dette er et populært område med god beliggenhet i forhold til E6 og aksen Oslo - Gardermoen, Alnabru, Lillestrøm og Lørenskog.

Kommunikasjon:
Enkel tilgang med bil og kort vei til offentlig kommunikasjon. Det tar ca. 3 min å gå til Trosterud T-bane. Her går t-banens linje 2 (Østerås-Ellingsrudåsen) og det tar ca. 17 min. til sentrum.
Her stopper også følgende busser: 344 til Gardermoen, 25 Lørenskog/Majorstuen, 79 Grorud/Holmlia og 411 Lillestrøm/Oslo Bussterm.

Adkomst:

Se vedlagt kart.

Innhold:

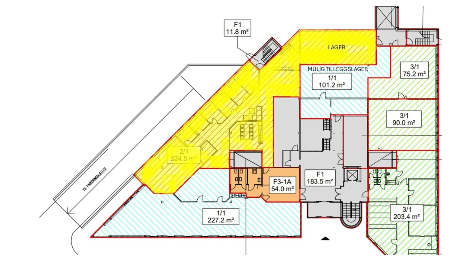
Vi har ledig kombinasjonslokale på ca. 465 kvm BTA.
Kontorareal på 375 kvm og lager på 91 kvm i byggets 1.etg.
Det er direkte adkomst mellom kontor og lager.

Kontorlokalene består av 6 kontorer av ulik størrelse med plass til 1-2 personer per kontor. 2 stk. landskapsareal for 4-6 personer. Kjøkken med spiseplass, 2 møterom og sosiale soner.

Lagerareal med felles innkjøring via port fra bakkeplan. Slusen deles med 2 andre leietakere. Egen port inn til eksklusivt lager fra slus. Takhøyde på ca. 3 meter.

Lokalet har en god og moderne standard.

Diverse:

ENERGIBESPARENDE TILTAK/BÆREKRAFT
I 2022 ble det gjennomført flere Taksonomi kompatible tiltak, med foreløpig reduksjon i energiinnkjøp på 38%.
Innstallering av solcellepanel på tak, installert nytt ventilasjonssystem og SD anlegg.
Hele byggets avfallshåndtering kildesorteres.

Gjennomførte tiltak og løpende drift overvåkes og rapporteres ved bruk av Varig, Smartvatten og Carrot. Eiendommen har derfor hele tiden god oversikt over forbruk og utslipp. Leietakere kan til enhver tid hente ut rapporter for bærekraftstiltak, energiforbruk, CO2-utslipp m.m.

Dette, sammen med eiendommens generelle standard, gjør at lokalene fremstår meget konkurransedyktige med en tydelig bærekraftig miljøprofil.

Kontakt oss for visning og tilbud:

Silje Bolstad

Silje Bolstad

92 05 42 22
sb@arealpartner.no

Nærområdet:

Annonsene kan være mangelfulle i forhold til lovpålagt opplysningsplikt. Før bindende avtale inngås oppfordres interessenter til å innhente komplett informasjon fra meglerforetaket, selger eller utleier.