Til leie

Akershusstranda - SKUR 41 | Funkisbygg BTA ca. 1201 kvm med særpreg og unik beliggenhet | 10 min fra Oslo S | Parkering

Nøkkelinfo:

Adresse:
Akershusstranda 37 - SKUR 41, 0150 OSLO

Areal:
1202 m2

Type lokale:

Kontor

Beliggenhet:

SKUR 41 ligger på "kaikanten" i et av Oslos mest attraktive og besøkte sjøfrontområder, og er en sentral del av Oslo Havns utvikling mot en åpen, publikumsrettet og moderne fjordby.

Eiendommen har en flott beliggenhet langs havnepromenaden mellom Aker Brygge/Tjuvholmen i vest og Operastranda/Bjørvika i øst, hvor det maritime miljøet rundt Akershuskaia og Akershus festning skaper en aktiv og levende atmosfære året rundt.

Området har svært gode kollektivforbindelser, med kort gangavstand til Oslo Sentralstasjon, samt flere buss- og trikke stopp.

I umiddelbar nærhet finner man populære serveringssteder, rekreasjonsområder, cruise- og havneanløp samt Akershus festning. Dette bidrar til høy synlighet, jevn menneskestrøm og et attraktivt næringsmiljø for virksomheter som ønsker eksponering mot både publikum og næringsliv.

Med sin kombinasjon av sentral beliggenhet langs havnepromenaden, og et stadig voksende service- og kulturtilbud i nærområdet, fremstår Akershusstranda 37 med SKUR 41 som et svært attraktivt område for virksomheter som ønsker å etablere seg i et profilerende maritimt bymiljø.

Innhold:

Kontorbygg beliggende på Utstikker II med maritim og meget sentral beliggenhet - SKUR 41 (Akershusstranda 37).

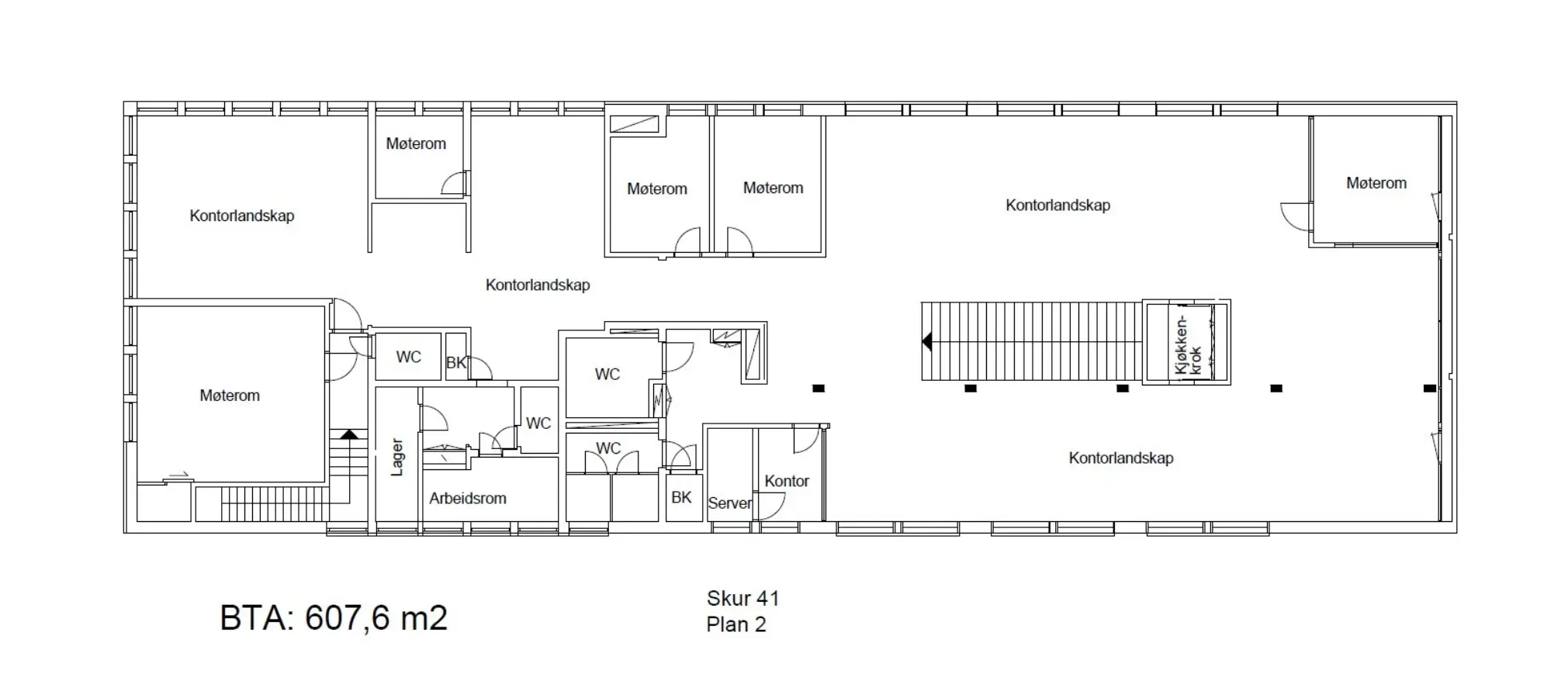
2. etasje, BTA ca. 607 kvm:
Stort kontorlandskap, møterom i forskjellige størrelser, stillerom, kjøkkenkrok/minikjøkken, div. lager/teknisk og toaletter.

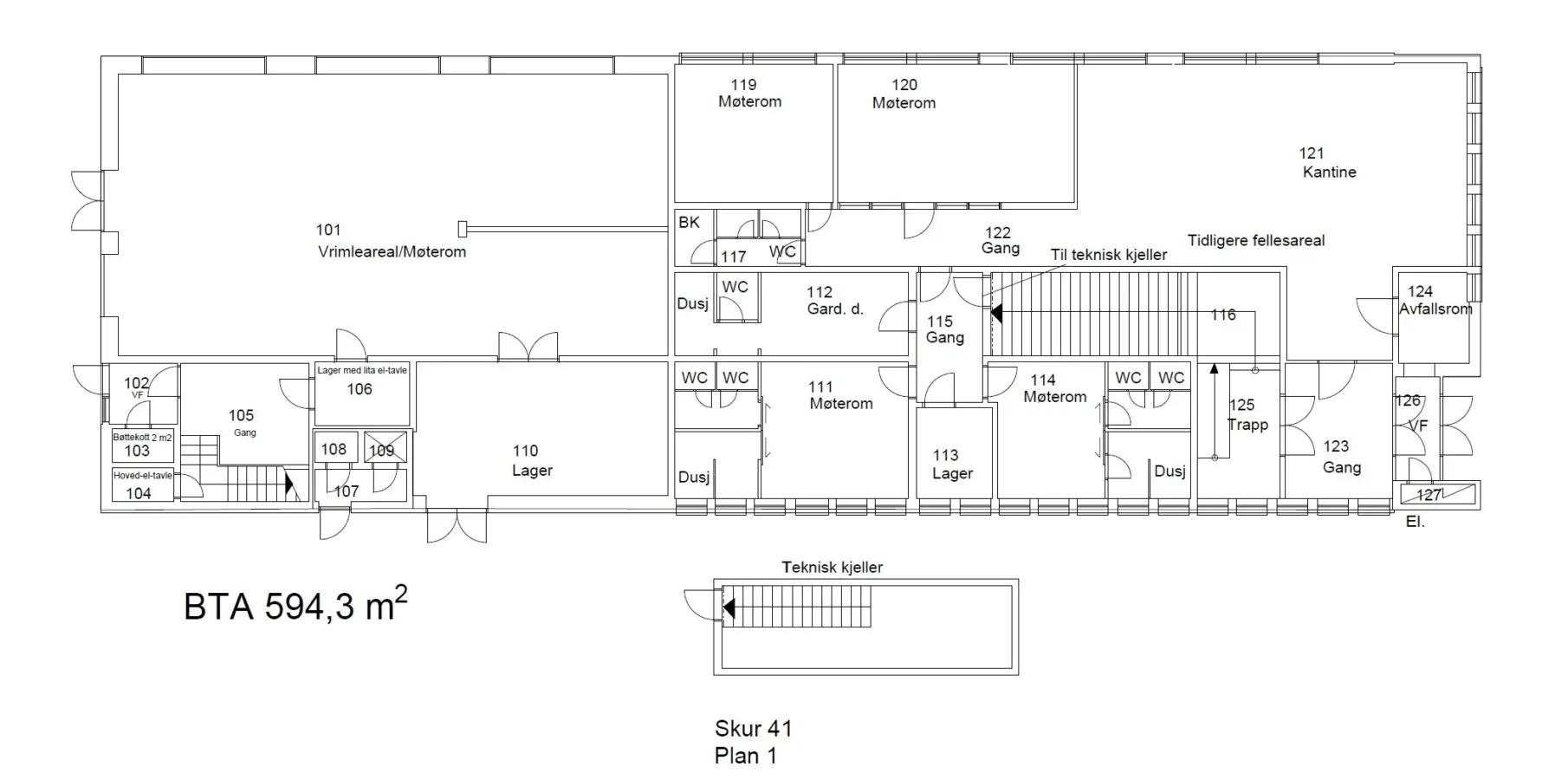
1. etasje, BTA ca. 594 kvm:
Stort showroom/areal for presentasjoner eller events med egen inngang, kantine utstyrt med storkjøkken, flere møterom, garderober med dusj, toaletter, div lagerrom, varemottak, mm.

  • HC-heis.
  • Varme og kjøling i ventilasjon.
  • Mulighet for leie av p-plasser.
  • Sykkelparkering ved inngangsparti.

    SKUR 41 ble opprinnelig oppført som administrasjonsbygg for Utstikker II, samt garderober og "spisebrakke" for los- og havnearbeidere.

  • Kontakt oss for visning og tilbud:

    Lasse Bjørnson

    Lasse Bjørnson

    90 60 44 81
    lb@arealpartner.no

    Reidar Kjølberg

    Reidar Kjølberg

    95 28 26 60
    rk@arealpartner.no

    Nærområdet:

    Annonsene kan være mangelfulle i forhold til lovpålagt opplysningsplikt. Før bindende avtale inngås oppfordres interessenter til å innhente komplett informasjon fra meglerforetaket, selger eller utleier.